
BESANA BRIANZA


Unità realizzate: 1


Tipo di intervento: Imbiancatura


Capitale proprio senza investitori


Durata operazione: 9 mesi
L'appartamento è ubicato a Besana Brianza in via Zappa.
Besana Brianza è un comune situato nella provincia di Monza. La via del nostro appartamento è in una posizione strategica a pochi passi dalla stazione ferroviaria che collega facilmente Besana Brianza a Milano e a Lecco.
Tipo di intervento
Si è trattato di un intervento puro flipping.
Si è deciso di non intervenire con ristrutturazioni invasive in quanto l'appartamento era già stato recentemente ristrutturato e si presentava in ottime condizioni.
Edificio:
Anni 60
Tipologia unità:
MQ:
119
Appartamento
Acquisto immobile:
Costo totale Lavorazioni: compreso di agenzia, notaio, imposte, ecc...
Ricavo:
135.000 €
19.000 €
Risultati operazione
Utile lordo:
60,7%
65.000 €
Roi operazione:
51.000 €
Analisi della zona
La vendita è stata fatta tramite una nostra agenzia partner, prima ancora che fossero pubblicati gli annunci sui portali immobiliari.
Commercializzazione e vendita
Impianto di riscaldamento:
Condominiale
Classe energetica:
E
Garage:
Singolo
Caratteristiche immobile
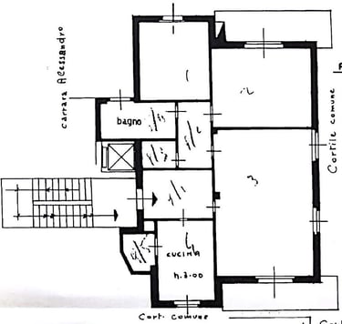
PROGETTO
Planimetria
GALLERY




Appartamento stato di fatto
Contatti
Olimpo Investment srl
luca@theolimpo.com
© 2025. All rights reserved.
P.Iva e cf - 11706500961
Sede Legale - viale Sabotino 19/2, Milano (MI)
Società
simone@theolimpo.com
+39 324-8470674